Imagine 31

Teren Intravilan 5.303 mp .Dezvoltare Logistică, Industrială sau Rezidentiala A0

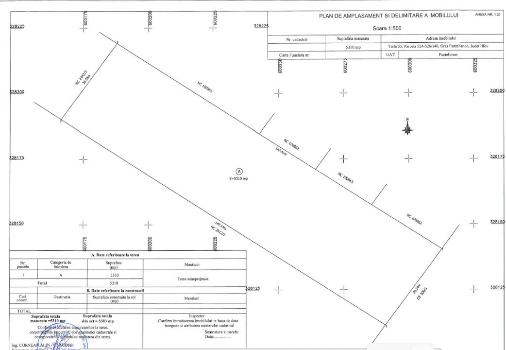
ID: P224322 Pantelimon 105
265.500€
Suprafata teren
5310 mp
Front stradal
147 m
Descriere
Terenul de 5.303 mp din zona Pantelimon–Fundeni reprezintă o oportunitate investițională rară, datorită combinației dintre localizarea strategică lângă Autostrada A0, dublul regim urbanistic (M2 și Lp) și flexibilitatea ridicată în utilizare. Este un teren care permite dezvoltări logistice, industriale, comerciale, de servicii sau rezidențiale, fiind potrivit atât pentru investitori cu viziune pe termen lung, cât și pentru dezvoltatori care urmăresc un ciclu rapid al proiectului.

Zonarea M2 oferă cadrul ideal pentru hale, centre logistice, spații comerciale sau birouri, având indicatori generoși precum POT 50% și CUT 2. Zona Lp completează proprietatea cu posibilitatea realizării unei dezvoltări rezidențiale P+2+M, clinici, birouri mici sau servicii locale, ceea ce conferă terenului o versatilitate pe care foarte puține proprietăți o pot oferi în această parte a orașului. Astfel, investitorul poate adapta oricând conceptul proiectului în funcție de dinamica pieței.

Coridorul LEA 220 kV, departe de a fi o limitare, se transformă într-un atu operațional pentru proiectele logistice și industriale. Această zonă poate deveni platformă betonată, parcare TIR, spațiu de manevră sau depozitare exterioară — funcțiuni indispensabile oricărui proiect industrial, care în mod normal ar consuma suprafață construibilă. Astfel, terenul permite o împărțire optimă între zona dedicată clădirilor și cea destinată fluxurilor logistice.

Terenul susține trei direcții clare de dezvoltare: o hală logistică sau industrială de 1.200–2.500 mp, un mini parc industrial cu module independente de 300–600 mp sau un proiect rezidențial format din vile, duplexuri sau un bloc P+2+M. Această flexibilitate îl recomandă atât investitorilor instituționali, cât și dezvoltatorilor mici și medii care caută un teren ușor configurabil și cu costuri controlate.

Accesul la utilități — energie electrică, gaze, apă, canalizare și fibră optică — contribuie la fezabilitatea imediată a unei dezvoltări. Poziționarea în proximitatea A0 adaugă un plus important de valoare, zona transformându-se rapid într-un pol logistic major, cu cerere în continuă creștere din partea companiilor de transport, e-commerce și distribuție.

În concluzie, acest teren reprezintă o investiție sigură, solidă și scalabilă, ideală pentru orice investitor care caută o proprietate cu potențial ridicat, adaptabilă și pregătită pentru dezvoltare. Versatilitatea urbanistică, poziționarea strategică și contextul logistic excelent îl transformă într-un activ rar în piața actuală, cu un randament excelent atât în scenariul industrial, cât și în cel rezidențial.
Caracteristici
  • ID:P224322
  • S. teren:5310.00 mp
  • Front stradal:147.00 m
  • Nr. fronturi:1
  • Clasificare teren:Intravilan
Specificatii
Curent
Apa
Canalizare
Localizare
Mihai Petrescu
Esti interesat de aceasta proprietate ?